
盛捷(Somerset)是全球知名酒店式公寓品牌——雅诗阁(The Ascott Limited)旗下的重要产品线,品牌覆盖全球众多城市,以高标准的空间配置和成熟的服务体系见长。上海盛捷外滩界服务式公寓于 2021年正式开业,总共提供约 210间豪华套房,秉承国际酒店式管理经验,结合长住居住需求,将“家”与“城市生活场景”完美融合。
与一些传统居住产品相比,这类服务式公寓既具备酒店式的礼遇与细致服务,又提供公寓式的私密空间与生活自由度。在城市功能不断重构、人才流动加速的背景下,像盛捷虹口外滩界这样的服务式产品正在成为越来越多长期租住群体的居住标准之选。

区位与交通|“双公园景观 + 都市交织”的理想栖居地
盛捷虹口外滩界服务式公寓坐落于 虹口区衡水路61号,位于成熟的 四川北路商圈,同时临近生态公园体系,兼具都市繁华与自然舒适。
1、珍稀双公园景观
公寓紧邻 四川北路公园与 爱思儿童公园,形成极少见的 双公园景观资源。在内环核心区域拥有绿肺般的自然环境极为稀缺,让住户即便身处繁忙都市,也能拥有静谧绿意的日常体验。
2、 都市交通枢纽
便利的轨道交通使得这一位置具备极高的通达性:
步行约 5 分钟至 地铁 10 号线四川北路站;
步行约 8–10 分钟至 地铁 4 号线/10 号线海伦路站;
靠近 地铁 3 号线公交换乘点。
从这里出发,前往各大商务与生活区域都十分便捷:
延安高架与延安东路隧道可快速接驳浦西与浦东;
驱车约 10 分钟可抵达北外滩核心商务区;
乘坐地铁或短途打车,30 分钟左右可达 人民广场商圈、陆家嘴金融区等城市核心。
此外,公寓离 上海火车站约 4 公里也是重要交通枢纽,便于长途出行。

盛捷虹口外滩界服务式公寓 房型价格一览
| 复试 | |||
| 复试 |
盛捷虹口外滩界服务式公寓联系电话:15921786368
租金包含:物业、发票、宽带WiFi、每周1次打扫,每周1次换洗布草,顶楼会所(含健身,SPA池等)及公区使用等;可饲养宠物(需收清洁费),车位1500元/月。可办理居住证,可提取公积金。
产品体系|多样户型满足多种长期居住需求
盛捷虹口外滩界服务式公寓共 210 套精装修房源,定位兼具长住品质与空间多样性,覆盖从行政单房到两房豪华复式的多种户型,适合不同规模家庭及生活方式。
4.5 米的层高设计与跃层布局让居住空间更显宽敞舒适,提升整体居住体验。
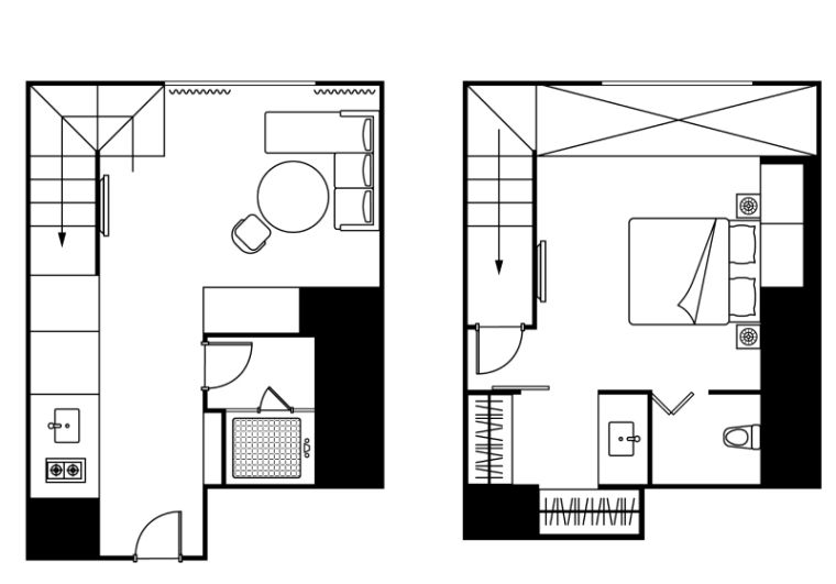
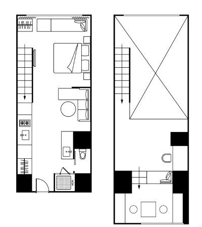
行政单房公寓 · 32㎡|¥9,000–11,000/月
约 32㎡ 面积设计,部分采用 Loft 式结构,通过层高与空间分隔创造更丰富的使用感受。该户型适合单身人士或商务长期出差者,兼顾私密空间与居住便利。



一房行政复式套房 · 56㎡|¥13,000–16,800/月
约 56㎡ 的复式设计将生活空间垂直拓展,让起居区与休闲空间彼此独立。全景落地窗引入充足自然光线,明亮通透。适合对居住空间有较高体验要求的住户。





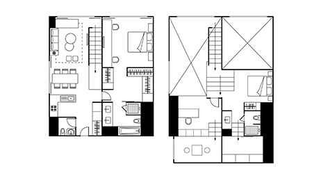
两房豪华复式套房 · 128㎡|¥22,000–28,000/月
约 128㎡ 的双卧豪华复式组合,为家庭型居住提供宽敞空间与高生活舒适度。主卧区域、开放式会客区以及多功能空间分区合理,非常适合长期租住与家庭生活。





特色配套设施|社区休闲与生活功能全面覆盖
作为高端服务式公寓,盛捷虹口外滩界不仅提供标准化的居住空间,还在社区配套与休闲设施上进行了系统布局,让居住变得更全面、更富生活品质。
1、健身与休闲设施
健身房:设备齐全的锻炼场所,支持日常身体活动;
水疗中心 / 桑拿房:提供放松与恢复的私人空间;


2、亲子&社交空间
游戏室:营造家庭互动空间;
住客休闲廊 & 空中花园:适合与邻居、小朋友互动,亦可作为阅读、休憩放松之地;

3、会所与公共空间
顶楼会所:俯瞰城市景观,适合家庭聚会或轻社交;
这些空间强调不仅仅是“住所”,更是可以开展家庭活动、社交聚会、身心放松的生活场景,提升长期居住的愉悦感与社群感。

服务体系|专业管理与长期居住保障
服务式公寓与传统长租住宅的核心差异之一就在于 服务系统化与专业化。盛捷虹口外滩界延续雅诗阁旗下专业物业管理,为住户提供以下核心服务:
1、基础生活支持
每周两次客房清洁服务;
床品每周一次更换;
全屋高速 Wi-Fi 覆盖与有线电视接入;
独立控温中央空调与洗衣烘干一体机;
2、安全与便捷
24 小时安保巡逻与闭路监控保障居住入住安全;
门厅与接待服务为住户与访客提供专业接待支持;
3、 社区生活支持
快递与包裹代收服务;
公寓内可根据需要提供洗衣与维护支持;
服务体系强调“高效、细致、贴心”,帮助住户在繁忙都市生活中获得“无忧、轻松”的居住体验。

周边生活配套与文化体验
盛捷虹口外滩界服务式公寓周边生活便利设施完备,可满足日常生活与休闲需求:
1、联华超市、白玉兰购物中心、虹口龙之梦商场等商业配套,步行即可达基本购物与餐饮生活圈;
2、周边便利店(全家、罗森等)与多样餐饮选择支持多元饮食体验;
3、四川北路公园与爱思儿童公园双生态资源让住户拥有绿色亲近空间;
4、临近历史悠久的 多伦路文化街,可体验老上海文化氛围;
这种“绿肺 + 商圈 + 文化街 + 城市商务核心”的复合型场景组合,使得居住既富生活便利,也富城市情感与文化体验。

适居人群与价值判断
基于项目定位、地段与产品特点,盛捷虹口外滩界服务式公寓尤其适合以下人群:
跨国企业高管与驻沪员工:高端服务与灵活租期;
长期租住家庭:复式两房户型提供家庭活动空间;
国际学生家庭与海归人士:完善设施与交通便利;
追求高品质都市生活方式的人群:园区景观、社交生活兼具。
对于这些人群而言,该项目不仅是居住空间,更是家庭生活、商务需求与都市生活方式融合的理想载体。

定义新时代的海派生活
盛捷虹口外滩界服务式公寓以其 稀缺的核心区位、丰盛的社区配套、国际化的服务体系与高品质的居住空间,构建出一种独具上海气质的“都会长住生活模式”。它不仅是一个长期的住处,更是一个可以承载日常生活仪式感与城市活力体验的场景。
在繁忙的城市节奏中,你不止是“住在城市里”,而是在城市生活的每一个片刻里找到归属与从容。上海盛捷虹口外滩界服务式公寓,将这一切变为可能。
租赁咨询:
159-2178-6368
info@knowapartments.com