在陆家嘴摩天楼群的钢铁丛林中,有一处隐于喧嚣的静谧港湾——上海浦东文华东方行政公寓。这里不仅是居所,更是一种生活方式的象征,将世界级奢华酒店服务体系、行政级居住尺度和高端长期居住体验完美融合。

项目定位:世界级酒店品牌下的行政公寓标杆
文华东方行政公寓隶属于全球知名的文华东方酒店集团,是其全球顶级酒店体系中,专为长期高端居住与行政级生活方式打造的核心产品线。自2013年4月1日正式开业以来,这里一直是跨国高管、国际金融精英、高净值家庭以及长期驻沪人士的高端居住首选。
项目总高22层,共设210套全方位服务式行政公寓,集顶级酒店服务标准、行政公寓空间尺度与一线滨江资源于一体,是陆家嘴极少数能够同时满足“长期居住+超高服务密度”的行政公寓项目。

黄金地段:黄浦江东岸·陆家嘴核心生活带
文华东方行政公寓坐落于黄浦江东岸陆家嘴核心区段,拥有一线的滨江区位资源:
• 一线临江:部分户型可享黄浦江景及浦西天际线,超广角落地窗环绕,将外滩万国建筑博览群与陆家嘴摩天楼宇的天际线一并献上
• 商务核心:紧邻陆家嘴金融城核心商务区,步行即可抵达国金中心、上海环球金融中心等金融地标
• 交通便利:临近地铁2/14号线陆家嘴站、14号线浦东南路站,到外滩仅需约10分钟车程
• 生活配套:步行5分钟可达尚悦湾购物中心,15分钟到国金汇、正大广场等商圈

户型设计:为长期高端居住而设计
文华东方行政公寓共提供210套服务式行政公寓,空间尺度遵循“长期居住优先”原则,强调舒适性与实用性。不同于酒店客房的局促,这里拥有完全按照高品质家居生活设计的宽敞空间。
上海浦东文华东方行政公寓租赁部电话:15921786368
户型 面积(㎡) 年租月租金(人民币)
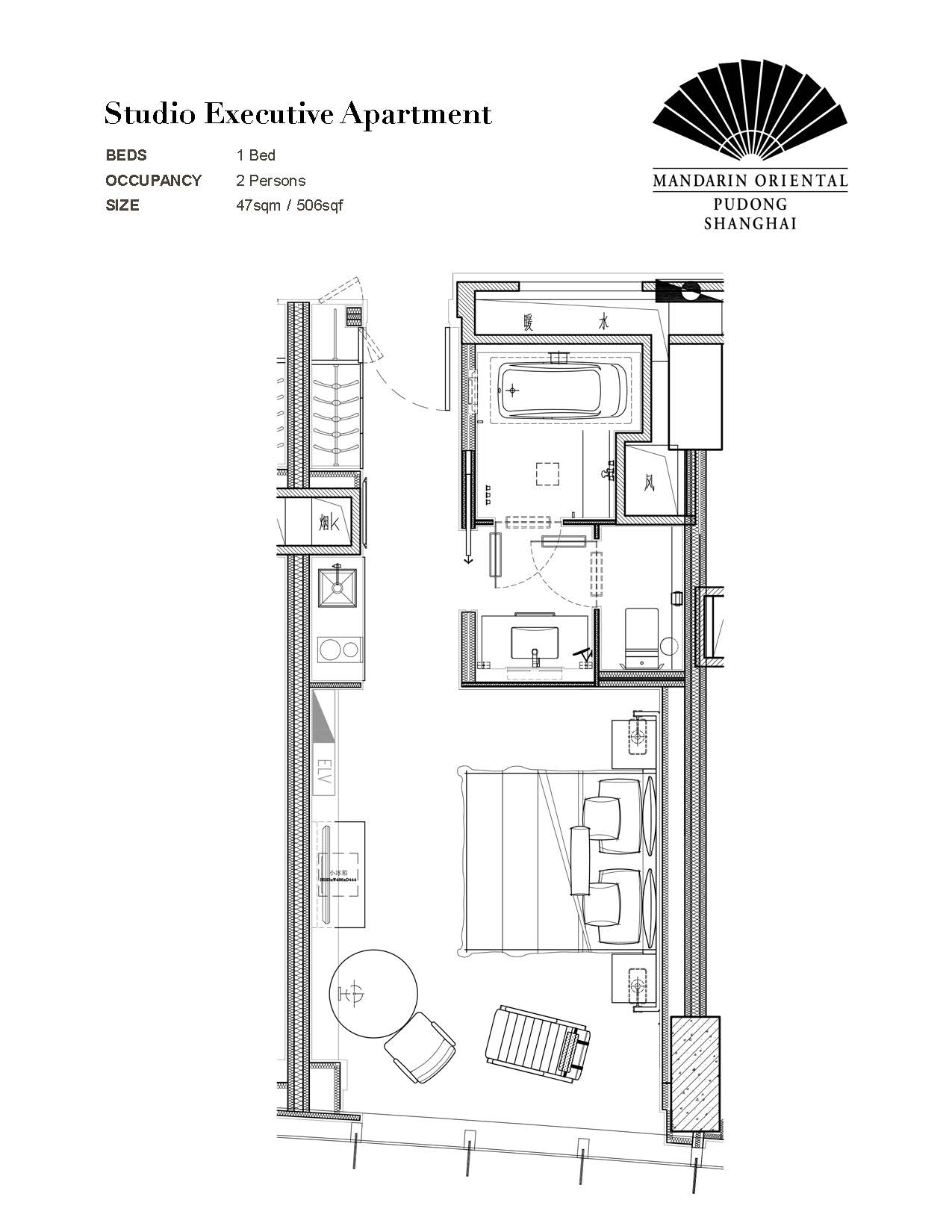
单间(Studio) 47 24,000-25,500起
特点:设计雅致,配有一张特大床、座椅和大书桌,小厨房可供喜欢烹饪的宾客使用


一房 100平米 28,000-35,000起
特点:集舒适、时尚及豪华理念于一身,主卧室配有步入式衣橱,套间浴室内设独立淋浴和浴缸


二房 125-151 40,000-52,000起
特点: 配有宽敞的起居空间,精心划分成用餐区、休息区和小厨房,设两间浴室


三房 182-191 58,000-65,000起
特点:配有宽敞的起居室,精心划分为用餐区、办公区、休息区和烹饪区,内设3间浴室


项目部分户型支持两套联通,可组合为大平层或定制级居住单元,为高管家庭、长期驻沪高层人士提供更具弹性的空间解决方案。
传奇服务:文华东方的“极致服务密度”
文华东方行政公寓的最大价值,在于其无可比拟的服务体系。租金包含内容全面,真正实现“拎包即长期入住”:
• 每日服务:每日客房清洁服务(每周7次),每周2次布草更换
• 全包费用:物业管理费、发票、宽带WiFi、国际卫星电视、水、电、能源费用全包
• 设施使用:健身房及泳池无限次使用
• 24小时服务:24小时前台礼宾、全天候管家客房服务

顶级配套:共享酒店世界级设施
住户可零距离体验上海浦东文华东方酒店的世界级餐厅与配套设施:
• 餐饮体验:6所高品质的新餐厅和酒吧,包括连续5年蝉联米其林一星的雍颐庭餐厅
• 康体设施:25米长的室内恒温游泳池、高科技健身中心、13间水疗套房
• 休闲空间:超过5000平方米的专属黄浦江畔户外活动空间
• 会议设施:中大型宴会厅及会议室,可容纳500名宾客的大宴会厅

居住价值:为极少数人而存在
浦东文华东方行政公寓并非追求规模或流量,而是高度聚焦于特定客群:
• 跨国企业董事级、高管级长期驻沪人士
• 国际金融机构、律所、咨询公司核心合伙人
• 对服务频次、生活稳定性要求极高的家庭型住客
• 注重隐私、品质与品牌背书的高净值人群
对于这类客群而言,“服务是否到位”远比“装修是否新”更重要,而文华东方正是全球范围内少数能稳定兑现这一承诺的品牌。
预约咨询
真正的奢华,是被长期照顾。文华东方行政公寓并不张扬,却在每一天的细节中,持续提供安全感、秩序感与尊贵感。当居住本身无需被操心,生活,才真正回归从容。
如果您对文华东方行政公寓感兴趣,欢迎通过以下方式预约看房或获取更多信息:
租赁咨询:
159-2178-6368
info@knowapartments.com